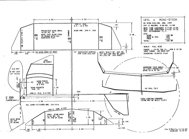
The Cat II record has since been surpassed by Rob Romash, but the plan has not been widely available. It came to INAV as part of a gift of notes and documents from his estate and his published here with his family’s permission.

Click here to download a PDF of the plan.



Leave a comment